DM Invest | Projectdetail
Start verkoop
Projectinformatie:
-
Costa Calida
30709 Roldán - Vanaf € 674.500
-
Vanaf 4
slaapkamers
- 2 Huizen
Omschrijving
Ontdek het luxueuze leven in El Alba - Villa's Aurora
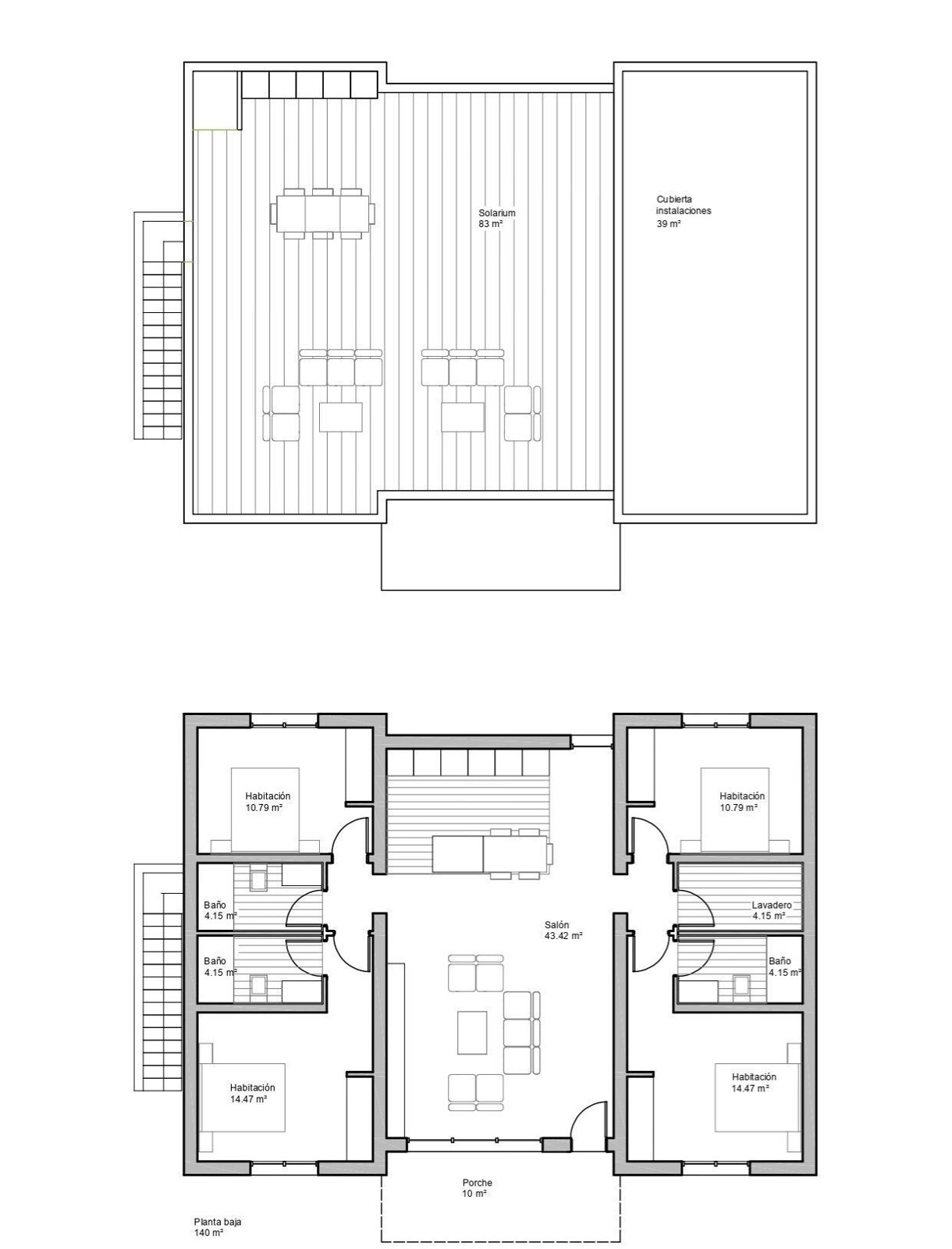
Stel je voor dat je in luxe leeft, omringd door zon, ruimte en moderne architectuur. El Alba - Villas Aurora biedt je de kans om dit te ervaren met twee prachtige gelijkvloerse villa's, elk met een privézwembad van 30 m² en een eigen parkeerplaats. Ontworpen voor comfort en stijl, beschikken deze villa's over vier slaapkamers en drie moderne badkamers.
De open indeling van de woningen creëert een sfeervolle verbinding tussen de volledig uitgeruste keuken en de woonkamer. Geniet van de zon in de grote tuin of op het solarium op het dak, waar je het hele jaar door kunt ontspannen.
Dit project ligt in het beveiligde El Alba Mediterranean Resort in Roldán (Murcia) en biedt niet alleen luxe maar ook gemak. Met 300.000 m² aan voorzieningen en sportfaciliteiten, en in de buurt van verschillende golfbanen, is dit de ideale plek voor een actieve levensstijl.
Wacht niet langer! Investeer in een toekomst van comfort en stijl in El Alba - Villas Aurora. Je droomhuis wacht op je!
Stel je voor dat je in luxe leeft, omringd door zon, ruimte en moderne architectuur. El Alba - Villas Aurora biedt je de kans om dit te ervaren met twee prachtige gelijkvloerse villa's, elk met een privézwembad van 30 m² en een eigen parkeerplaats. Ontworpen voor comfort en stijl, beschikken deze villa's over vier slaapkamers en drie moderne badkamers.
De open indeling van de woningen creëert een sfeervolle verbinding tussen de volledig uitgeruste keuken en de woonkamer. Geniet van de zon in de grote tuin of op het solarium op het dak, waar je het hele jaar door kunt ontspannen.
Dit project ligt in het beveiligde El Alba Mediterranean Resort in Roldán (Murcia) en biedt niet alleen luxe maar ook gemak. Met 300.000 m² aan voorzieningen en sportfaciliteiten, en in de buurt van verschillende golfbanen, is dit de ideale plek voor een actieve levensstijl.
Wacht niet langer! Investeer in een toekomst van comfort en stijl in El Alba - Villas Aurora. Je droomhuis wacht op je!
a0ObR000002Cv4bUAC
Ontdek de beschikbaarheid en prijzen
Volledig beschikbaar
| Referentie | Unit nummer | Slaapkamers | Oppervlakte | Terras | Tuin | Grondplan | Prijs |
|---|---|---|---|---|---|---|---|
| CCAL22787-20844 | 1 | 4 | 140 m² | - | - | - | € 674.500 |
| CCAL22787-20845 | 2 | 4 | 140 m² | - | - | - | € 674.500 |
Costa Calida
30709 Roldán
-1.01255
noot: De exacte locatie van het project wordt niet weergegeven op de kaart.
Vraag meer info over dit project
Interesse in dit project?
Gelijkaardige projecten
Moderne mediterrane villa's met solarium en privézwembad in Roldan
Vanaf €379.950
Regio
Roldan (Costa Calida)
Moderne appartementen met zeezicht bij Fuengirola
Vanaf €999.000
Regio
Fuengirola (Costa Del Sol)
Moderne nieuwe bungalowappartementen in Pilar de la Horadada
Vanaf €252.900
Regio
Pilar de la Horadada (Costa Blanca South)
LUXUEUZE VILLAS MET ZWEMBAD IN CUMBRE DEL SOL
Vanaf €2.167.000
Regio
Cumbre del Sol (Costa Blanca North)
Nieuwbouwappartementen in bungalowstijl rustig gelegen in Roldan
Vanaf €233.000
Regio
Roldan (Costa Calida)
Nieuwbouw villa’s op een rustige locatie in Roldan
Vanaf €227.500